Заказать звонок
Заказать звонок

Дом, 150 кв.м., Центральная площадь

Тюмень, Центральная площадь
 
Тип объявления
Продажа
Категория объекта
дом
Количество комнат
4
Общая площадь
150 м2
Площадь участка
8 сот.
Удобства
Канализация

Записаться на просмотр Рассчитать ипотеку

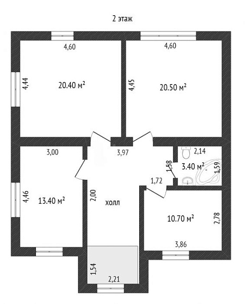
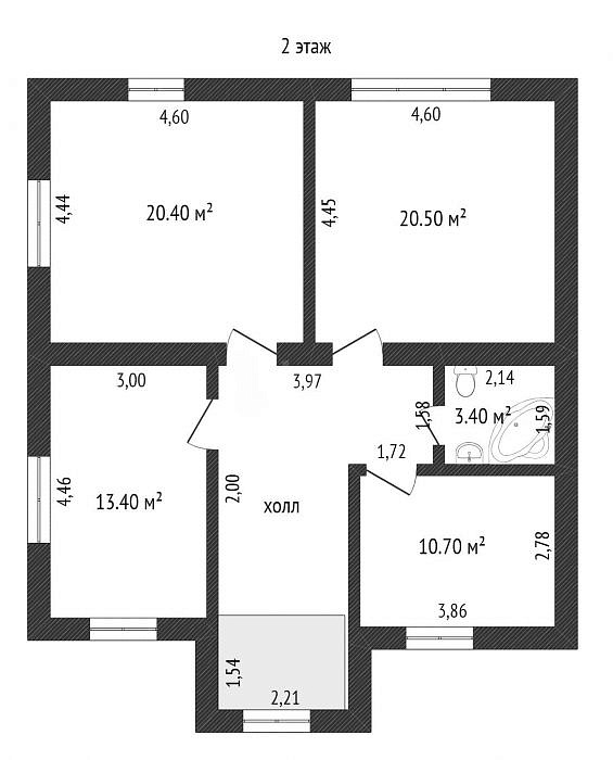
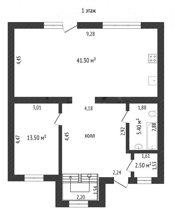
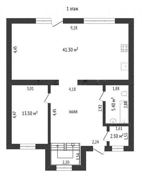
Продается коттедж в поселке Московский. Два этажа на монолитном ленточном фундаменте.В доме 5 комнат, выполнен из керамзитоблоков,облицован керамическим кирпичом,стены утеплены пенополистиролом.Крыша покрыта металлочерипицей и утеплена 20см слоем мин. ваты.Стены внутри дома выровнены под маяк,от шпаклеваны и подготовлены под чистовую отделку.Вода заведена в дом.Водоотведение осуществляется в 10 кубовый металлический септик,расположенный у границ участка. Кирпичный забор со вставками из проф настила, на ленточном фундаменте по периметру участка за отдельную плату.