3-к квартира, 119 кв.м., Комсомольская улица, 13
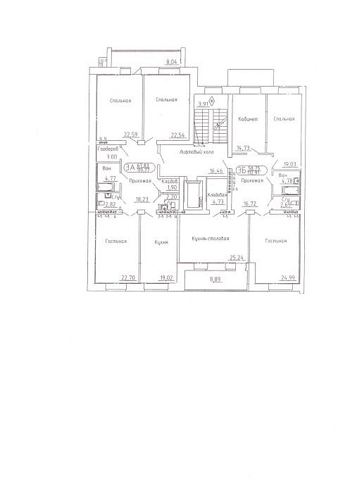
Трехкомнатная квартира в центральном р-не по ул. Комсомольская. Общая площадь: 119,77 кв.м., такая же квартира есть на 6 этже.
Индивидуальные планировки!Дом кирпичный, высота потолков 3,2м, кухня - гостиная 25 кв.м., лоджия застеклена, санузел раздельный, гардеробная. В квартире выполнена улучшенная черновая отделка. Въезд с ул. Комсомольской и с ул. Водопроводной. Двор закрытого типа, охрана, видеонаблюдение. Дом расположен в исторической части города. Развитая инфраструктура, в шаговой доступности: детские сады, школы и гимназии, дополнительные юношеские образовательные центры ,медицинские учреждения и вся прочая инфраструктура для комфортного проживания! В доме есть лифт, подземная парковка, кладовые.
Возможно дополнительно приобрести машиноместо и кладовую.
Индивидуальные планировки!Дом кирпичный, высота потолков 3,2м, кухня - гостиная 25 кв.м., лоджия застеклена, санузел раздельный, гардеробная. В квартире выполнена улучшенная черновая отделка. Въезд с ул. Комсомольской и с ул. Водопроводной. Двор закрытого типа, охрана, видеонаблюдение. Дом расположен в исторической части города. Развитая инфраструктура, в шаговой доступности: детские сады, школы и гимназии, дополнительные юношеские образовательные центры ,медицинские учреждения и вся прочая инфраструктура для комфортного проживания! В доме есть лифт, подземная парковка, кладовые.
Возможно дополнительно приобрести машиноместо и кладовую.
Ваш персональный менеджер
Написать нам
Похожие предложения